优控YK600变频器详细介绍:
YK600系列变频器是优控机电通过深入市场调研而推出的一款高性能、易用型变频器。该系列变频器性能卓越、可靠稳定、结构紧凑、易用型强,轻松应对行业应用过程中的难点和痛点,将带给您极佳的使用体验。

优控YK600变频器的容量范围:
单相220V电源(3S) 0.4-5.5KW
三相220V电源(3T)0.4-220KW
三相380V电源(4T)0.75-630KW

优控YK600系列变频器技术性能与特点:
1、稳整精度高,调整范围广
稳速精度:±0.5%(SVC)
调速范围:1:200(SVC)
转矩响应:≤40ms(SVC)
重负载过载能力:110%额定稳定运行,150%额定负载1min,180%额定负载5S。
2、高启动转矩功能:
满载时转速转矩测
满载时电机输出额定转矩102.4Nm
SVC控制速度波动实测0.2%
SVC控制稳速精度实测0.4%
3、瞬时不停功能
此功能指在瞬时停电时变频器不会停机,在瞬间停电或电压突然降低的情况下,变频器降低输出速度,通过负载回馈能量,补偿电压的降低,以维护变频器短时间内运行。
4、卓越的过流抑制性能
突加在,突掉载实测电流波形
典型应用机床、搅拌机、球磨机、离心机、传送带等其他负载突变场合。
5、快速限流技术
最大限度减少变频器报过流概率。
6、行业内领先的转速跟踪性能
0.3S实现带辨识方向转速跟踪启动
典型应用风机、冲床等其他需要转速追踪的场合。
7、整机的热可靠性
采用了高效精准的热仿真平台软件,保障了整机的热可靠性。YK600系列高性能变频器都必须经过热仿真测试,只有在热仿真安全设计要求范围内,才可以出实物样机,开发。热设计是经过科学仿真检验的,准确度高,效率快,稳定性好,特别是在极限测试状态下,热仿真就可以替代实际负载测试模拟,相当于多一层科学热检验。
8、整机温升测试
a.整机温升测试采用了最为严格的循环过载规格验证检验,满足了极端负载工况下长时间可靠运行。
b.循环过载:在环温40°C下,1.5倍额定电流运行1分钟。随后1倍额定电流运行4分钟,再1.5倍额定电流运行1分钟,这样连续周期运行,一个周期五分钟,直到系统达到热平衡状态,整机处于热设计安全范围内。变频器运行状态都是在1倍额定以上最极限的过载状态下,还能安全稳定运行。
9、保护更全面
新增上电瞬间对地短路保护监测功能
10、三防漆自动喷涂工艺
特有三防漆自动喷涂线设备,可根据不同电路板设计不同的喷涂策略,使三防漆涂层厚度均匀性、批量一致性得到可靠保障。
11、整机出厂100%带载、过载测试,充分保障产品出厂质量
12、长寿命设计
关键元器件和PCB板件升温收到全面监控,优化配置,设计寿命长,大冗余热设计。

优控YK600系列高性能矢量变频器:
开环矢量控制性能:优异的低频带载稳定性,转矩响应性能,电流控制稳定性等,开环矢量模式下可实现开环转矩控制;
V/F控制性能:自动转矩提升可使低频启动转矩达到:0.5Hz 150%;电流、电压抑制性能达到国际一流水平等;
可根据客户需求定制专机参数,并实现专机参数一键操作;
本地键盘可以拿出来作外引控制;
增加无键盘运行状态监控灯;
多种安装模式可选,壁挂式安装,落地式安装,穿墙式安装模式可选;
符合人体工程学设计的取装键盘方式,大大降低键盘取装过程中的故障率;
全系列采用直流风扇,全密封式直流接触器,可靠稳定性更高,可直接应用于EPS,逆变电源等行业

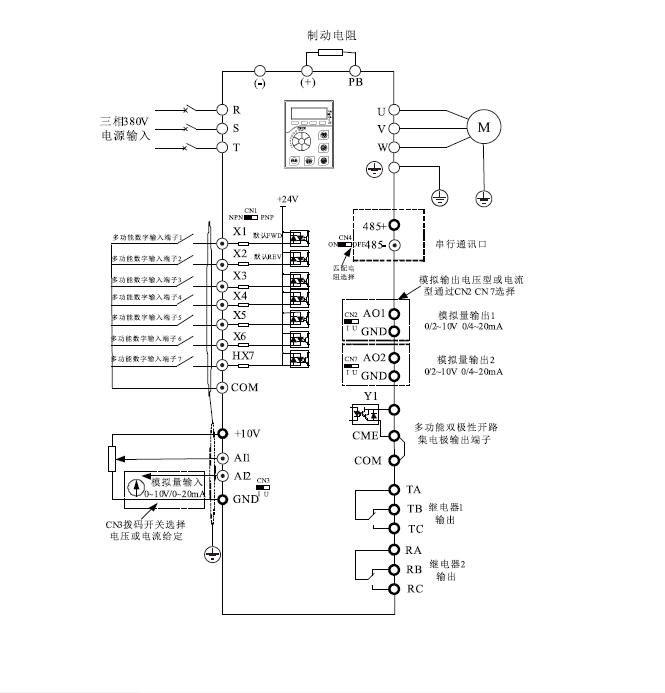
优控YK600变频器4KW以上三相变频器接线图:

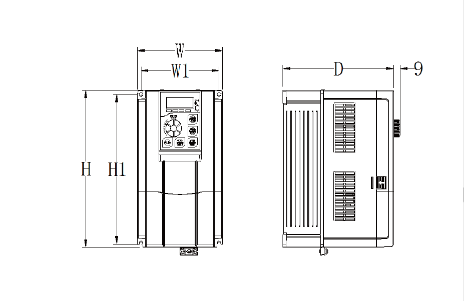
7.5KW以下塑胶外形尺寸及安装尺寸:

11-132KW钣金机箱外形尺寸及安装尺寸示意图:

塑料结构变频器穿墙开孔尺寸/钣金结构变频器穿墙开孔示意图:

关于【优控机电】:

联系方式:
广东地址:广东省东莞市南城区宏远路9号兆炫科创园C207
服务热线:0769-22326240
联 系 人:王先生/15899617171